Лофт с видом на город Тайбэй
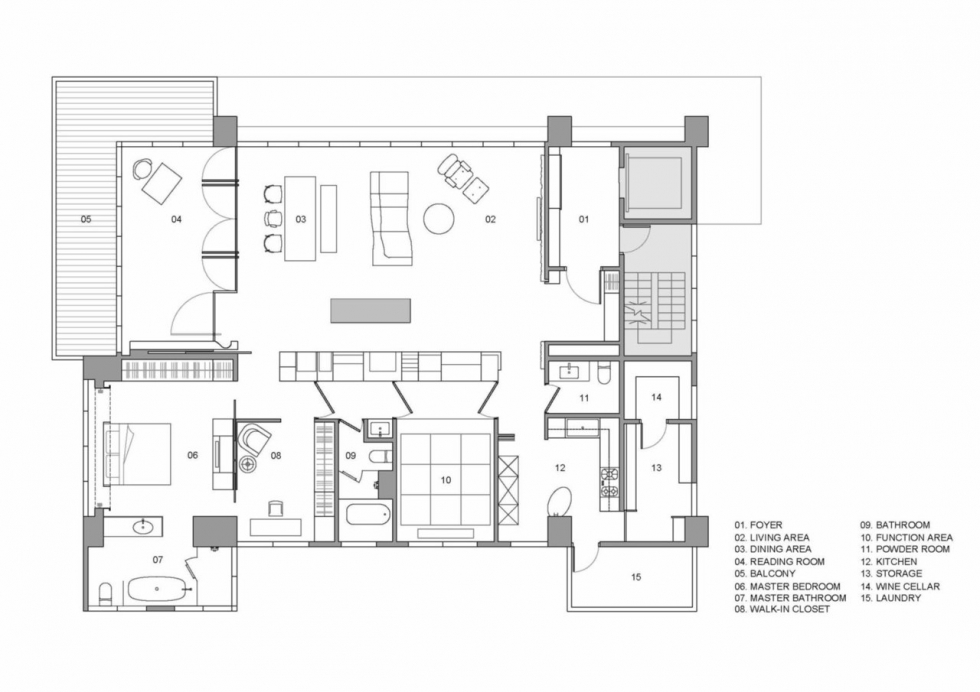
Расположенный в непосредственной близости от реки и небольшого парка прямо напротив, этот лофт в Тайбэе, Тайвань, спроектировала команда Create + Think Design Studio. Общий план апартаментов площадью 232 кв. метра напоминает идеальный квадрат. Длинный деревянный шкаф разделяет пространство квартиры на несколько функциональных секций: зону отдыха, спальни хозяев и гостей, а также кухню и винную комнату. Контрастная структура центрального острова из нержавеющей стали добавляет прохлады в интерьер с обилием тёплых деревянных поверхностей, а также стекла и бетона. Её конструкция связывает гостиную, столовую и место для чтения, отделённое стеклянными дверями. Тут находится и выход на террасу с видом на окружающий ландшафт. Главная спальня соединяется с ванной путём использования деревянной отделки, а старинные элементы декора создают ауру тосканской виллы. Кухонная часть оборудована просто, с максимальным вниманием к функциональности. Здесь же расположена винная комната с коллекцией вин, которым владелец угощает своих друзей во время вечеринок.










Написать комментарий
5 комментариев
Алла М.
2016-11-05 11:54:51
В таком цветовом решении всё выглядит прекрасно.Глаза мозолит диван такого цвета, но зато ванна, душ просто прелесть!
Ответить
*Светлана*
2016-11-05 12:19:08
Невидимая кухня — идеальный вариант для столь огромных гостиных.
Ответить
Алла М.
2016-11-05 12:41:24
Кухню вообще найти трудно на фото, на плане отыскала: № 12.Не поняла совмещение кровати с рукомойником?, туалет, то есть унитаз, тоже ряядом с кроватью? или там стеклянная перегородка?, что-то грустно от этой затеи.
Ответить
Галина
2016-11-05 20:19:06
Кухню вообще найти трудно на фото, на плане отыскала: № 12.Не поняла совмещение кровати с рукомойником?, туалет, то есть унитаз, тоже ряядом с кроватью? или там стеклянная перегородка?, что-то грустно от этой затеи.
Между хозяйскими спальней и санузлом висит плотная штора (посмотрите на предпоследнее фото) и, судя по отблескам от окна, умывальник отделен от кровати и стеклянной перегородкой. Но двери в санузел вроде нет. Насколько я поняла из цикла передач про Китай и Тайвань, китайцы как-то по-особенному относятся ко всем естественным отправлениям человеческого организма. Там очень много на улицах «статуй» в виде унитазов и даже их содержимого, раскрашенных в яркие цвета. Менталитет такой.
Ответить
Алла М.
2016-11-05 20:48:14
Между хозяйскими спальней и санузлом висит плотная штора (посмотрите на предпоследнее фото) и, судя по отблескам от окна, умывальник отделен от кровати и стеклянной перегородкой. Но двери в санузел вроде нет. Насколько я поняла из цикла передач про Китай и Тайвань, китайцы как-то по-особенному относятся ко всем естественным отправлениям человеческого организма. Там очень много на улицах «статуй» в виде унитазов и даже их содержимого, раскрашенных в яркие цвета. Менталитет такой.
Спасибо, Галина! Да, да, штору я заприметила сразу. Интересно про такое уважение к унитазам у них, хотя ведь и у нас на Рублёвском шоссе унитазы золотые, тоже не халам-балам. Действительно, другой менталитет, мне не понять (сразу).
Ответить
