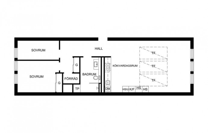
Шведская квартира площадью 83 м2

















Написать комментарий
1 комментарий
LEA
2025-07-02 23:20:09

Ответить