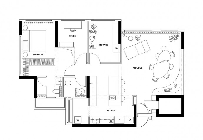
Квартира площадью 111 м2 в Сингапуре
















Написать комментарий
1 комментарий
LEA
2025-04-08 11:54:17


Ответить