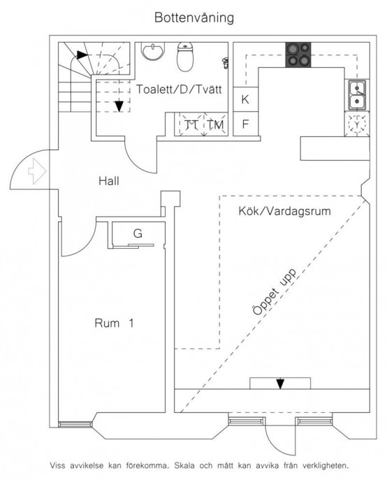
Двухуровневая квартира площадью 124 м2 в Швеции





















Написать комментарий
Нет комментариев