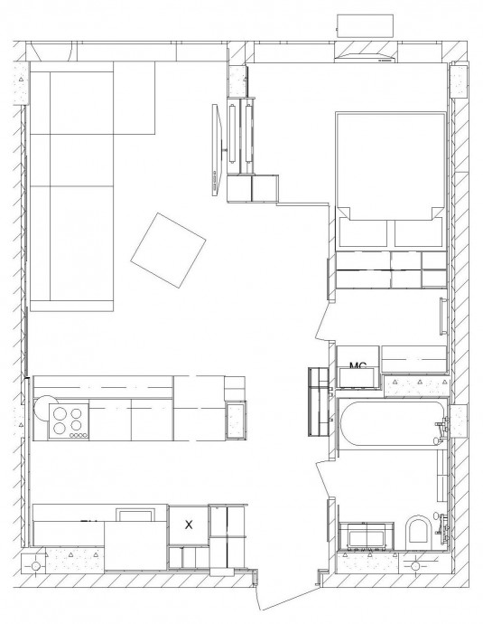
Квартира-студия площадью 42 м2

















Написать комментарий
Нет комментариев